Exposé druckenObjekt 3797

    NEUER PREIS ! BAUGRUNDSTÜCK für 1 - 6 Familienhaus in Solingen-Mitte unweit der City

    Objektdetails zu Objekt 3797

    Nutzungsart Wohnen
    Vermarktungsart Kauf
    Objektart Grundstück
    Objekttyp Grundstück
    PLZ 42651
    Ort Solingen
    Land Deutschland
    Plz + Ort 42651 Solingen
    GFZ 0.7
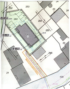
    Grundstücksgröße 526 m²
    Kaufpreis 150.000 €
    Provision 3.57 %
    Provisionspflichtig Ja

    Ihr Ansprechpartner

    Herr Walter Stritzel

    Telefon: 02129-2088
    Fax: 02129-377444

    E-Mail: cs-immobilien@t-online.de

    Es handelt sich hier um ein schön geschnittenes Baugrundstück für ein 1-6 Familienhaus in 3-geschossiger Bauweise. Erzielbare Wohnfläche ca.ca.ca.. 400 m².

    Es ist eine Baugenehmigung mit Plänen für ein 6-Familienhaus vorhanden.
    Das Grundstück liegt in einer ruhigen aber zentrumsnahen Nebenstraße in der Nähe des Gustav-Coppel Parkes. Aufgrund seiner Lage besteht eine sehr gute Infrastruktur. Alle Geschäfte des täglichen Bedarfes. Öffentliche Verkehrsmittel, sowie Ärzte, Schulen sind sehr gut erreichbar.
    Laut Auskunft des Stadtdienstes Natur und Umwelt der Klingenstadt Solingen - Untere Bodenschutzbehörde besteht keine Eintragung im Altlastenverzeichnis.

    Für weitere Fragen steht Ihnen Herr Stritzel unter der Telefonnummer 02129 2088 gerne zur Verfügung.
    Laut Auskunft des Stadtdienstes Natur und Umwelt der Klingenstadt Solingen - Untere Bodenschutzbehörde besteht keine Eintragung im Altlastenverzeichnis.

    Für weitere Fragen steht Ihnen Herr Stritzel unter der Telefonnummer 02129 2088 gerne zur Verfügung.

    Anfrage zu Objektnummer 3797:

    pm6w886h5

    Ich bin einverstanden von amarc21 Immobilien telefonisch oder per E-Mail kontaktiert zu werden. Wenn ich dies nicht mehr wünsche werde ich Sie schriftlich darüber informieren.

    Ich bin mit der Datenschutzerklärung einverstanden.

    * diese Felder müssen ausgefüllt werden